Design & Oversight
From initial concept through to completion, I offer comprehensive design services tailored to the unique needs of each project and client.


Design Services
Residential
Residential projects including HMO planning, serviced acommodation fitouts & light architectural works




Commercial
Including commercial- to- residential planning, hospitality & office refurbishments
Project oversight- weekly site check-ins with a site video of progress for investors & shareholders.
Project Oversight


Projects


Hospitality Design
Commercial restaurant project in Zimbabwe


Retail Design
Children's toy shop with custom joinery detailing throughout.


Retail Design
Ladies clothing and accessory store


3D Imagery
Production of 3D imagery for selling property off-plan, or presenting to investors and shareholders.


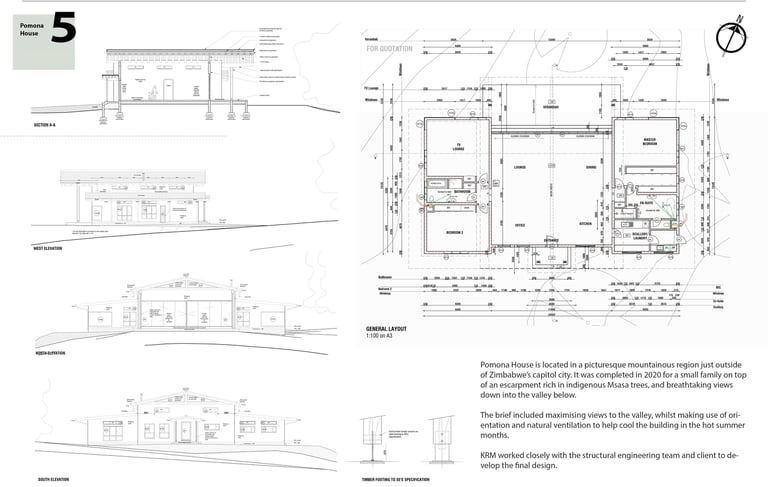
Residential Design
Architectural design & drawing production for simple dwelling


Residential Design
Architectural design & drawing production for larger home with exposed truss design


